Nous suivre

APPARTEMENT T3 PROCHE GARE

Chartres (28000)
Réf : 586

AVIRON CONSEIL IMMOBILIER vous propose, à la vente, à CHARTRES, cet appartement de 64 m² au premier étage avec ascenseur dans une résidence très récente.

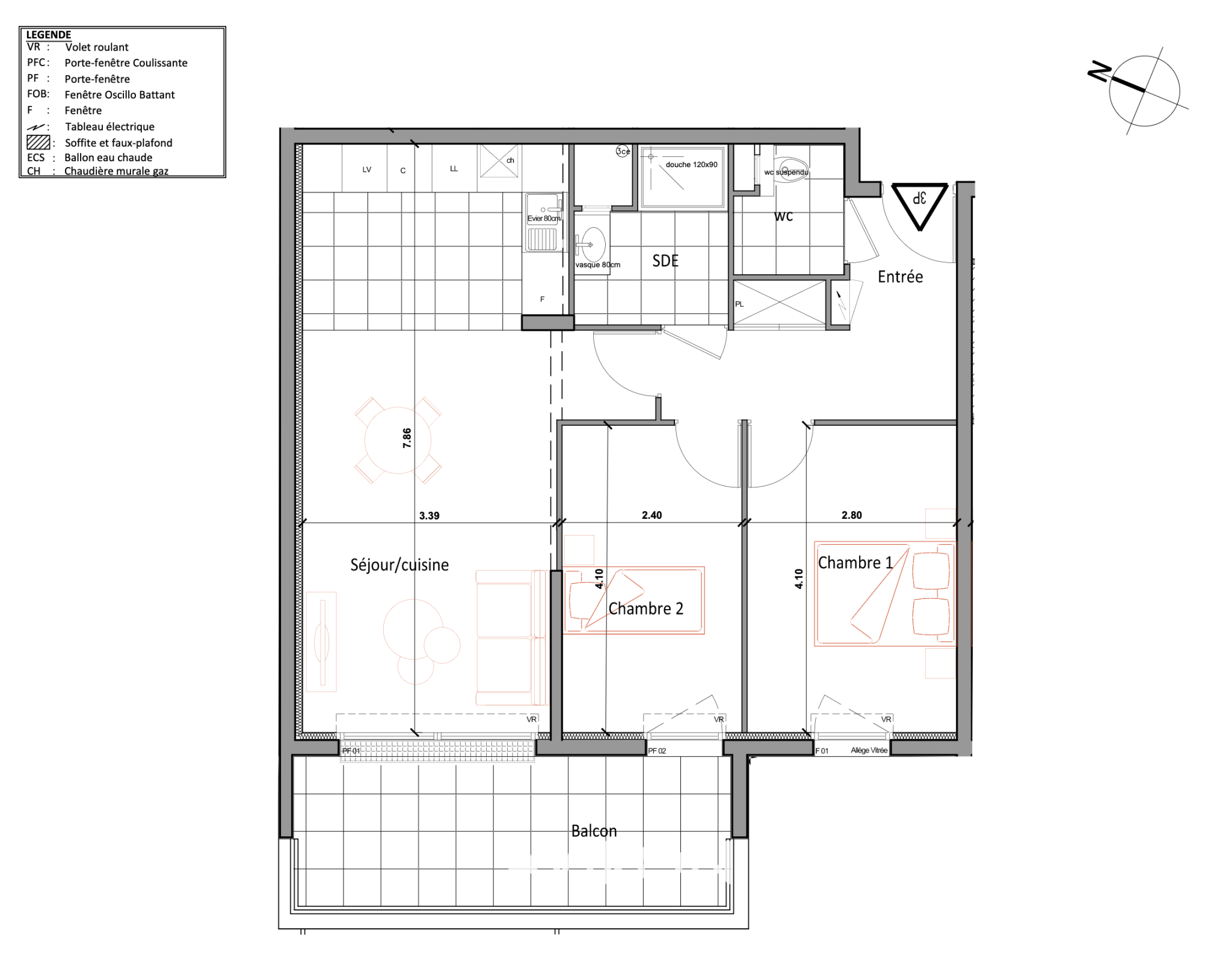
Il se compose d'un séjour ouvert sur une cuisine équipée et aménagée, 2 chambres, une salle d'eau et WC séparés. Ce bien compte aussi un balcon de 12 m², de 2 places de parking et d'une cave.

Quartier attractif proche de toutes commodités et de la gare.

Prix du bien 222 600 €
Pièce(s) 3
Chambre(s) 2

Caractéristiques du bien

Caractéristiques Valeurs
Code postal 28000
Surface habitable (m²) 64,10 m²
Surface loi Carrez (m²) 64,10 m²
Nombre de chambre(s) 2
Nombre de pièces 3
Etage 1
Ascenseur OUI
Nb de salle d'eau 1
Cuisine Américaine
Type de cuisine Equipée
Mode de chauffage Gaz de ville
Type de chauffage Chaudiere
Format de chauffage Individuel
Interphone OUI
Visiophone OUI
Balcon OUI
Nombre de garage 2
Cave OUI
Exposition Sud-Ouest
Année de construction 2023

Infos financières

Caractéristiques Valeurs
Prix de vente honoraires TTC inclus 222 600 €
Prix de vente honoraires TTC exclus 210 000 €
Honoraires TTC à la charge acquéreur 6 %
Charges 112 €
Taxe foncière annuelle 1 800 €

Bilans énergétiques

DPE GES
Ce bien vous intéresse ?
Fieldset par défaut
Fieldset par défaut
Validation

* Champs obligatoires

Contacter l'agence
Validation
Les informations recueillies sur ce formulaire sont enregistrées dans un fichier informatisé par La Boite Immo agissant comme Sous-traitant du traitement pour la gestion de la clientèle/prospects de l'Agence / du Réseau qui reste Responsable du Traitement de vos Données personnelles. La base légale du traitement repose sur l'intérêt légitime de l'Agence / du Réseau. Elles sont conservées jusqu'à demande de suppression et sont destinées à l'Agence / au Réseau. Conformément à la loi « informatique et libertés », vous disposez des droits d’accès, de rectification, d’effacement, d’opposition, de limitation et de portabilité de vos données. Vous pouvez retirer votre consentement à tout moment en contactant directement l’Agence / Le Réseau. Consultez le site https://cnil.fr/fr pour plus d’informations sur vos droits. Si vous estimez, après avoir contacté l'Agence / le Réseau, que vos droits « Informatique et Libertés » ne sont pas respectés, vous pouvez adresser une réclamation à la CNIL. Nous vous informons de l’existence de la liste d'opposition au démarchage téléphonique « Bloctel », sur laquelle vous pouvez vous inscrire ici : https://www.bloctel.gouv.fr Dans le cadre de la protection des Données personnelles, nous vous invitons à ne pas inscrire de Données sensibles dans le champ de saisie libre.
Ce site est protégé par reCAPTCHA, les Politiques de Confidentialité et les Conditions d'Utilisation de Google s'appliquent.

Localisationdu bien